Buy
Selangor
Search property, location...etc
Property Type
Link Bungalow / Semi-Detached House
Price
Bedrooms
Built-up Area
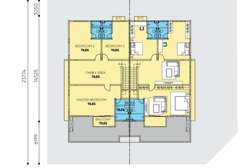
There are 64 Properties for Sale in Jenjarom, Selangor. You can use the enhanced search filters available to find the right landed homes, condominium, bungalow or residential land in this area.
Explore our extensive property collection with a powerful evaluation tool that offers clear market insights, helping you confidently find the right property in Malaysia. Begin your search using the filters above.

